АЛНЕО
Профиль Юга России
Система АЛНЕО появилась сравнительно недавно, собрав лучшие разработки немецких и российских инженеров. Алюминиевые профили системы АЛНЕО производятся по ГОСТ 22233-2018.
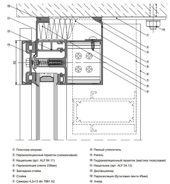
Алюминиевая система АЛНЕО изготавливается из сплава АД31, имеющего в составе алюминия 97-99%. Важной составляющей в системе являются дополнительные материалы, из которых состоят алюминиевые системы в сборе. Это полиамидные термоизолирующие вставки. Термовставки изготавливаются из полиамида с добавлением большой доли стекловолокна.
В системе АЛНЕО разработаны следующие системы:
Двери без термоизолятора («холодные») – AL40
Оконно-дверная система без термоизолятора («холодная») – AL45
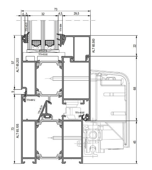
Оконно-дверная система с термоизолятором («теплая») – ALT65, ALT72
Оконная серия с термоизолятором («теплая») – ALT60
Оконные створки верхнеподвесного типа, встраиваемые в витраж – ALT83
Вентиляционные решетки – ALVG-24
Фасады – ALF50
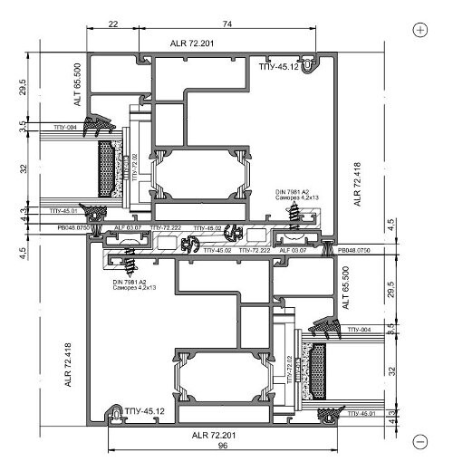
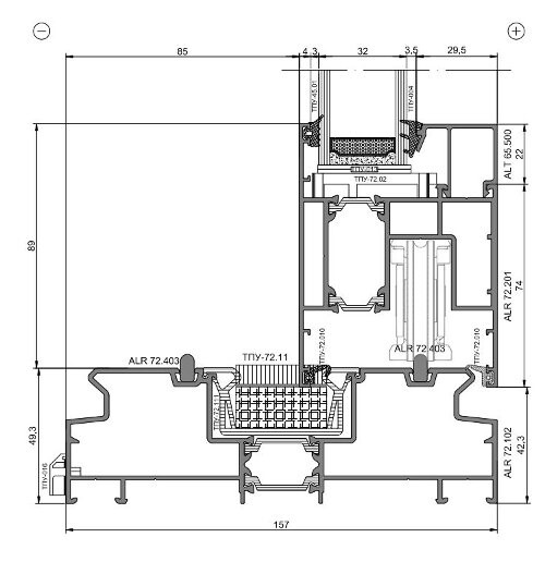
Подъемно-сдвижные двери с термоизолятором («теплые») – ALR-72
Подъемно-сдвижные двери без термоизолятора («холодные») – ALR-45
Для нас в работе с АЛНЕО большим преимуществом является то, что производство и декорирование профиля находится в соседнем Краснодарском Крае. Это позволяет быстро получать материал и запускать заказ в производство.
Алюминиевая система АЛНЕО изготавливается из сплава АД31, имеющего в составе алюминия 97-99%. Важной составляющей в системе являются дополнительные материалы, из которых состоят алюминиевые системы в сборе. Это полиамидные термоизолирующие вставки. Термовставки изготавливаются из полиамида с добавлением большой доли стекловолокна.
В системе АЛНЕО разработаны следующие системы:
Двери без термоизолятора («холодные») – AL40
Оконно-дверная система без термоизолятора («холодная») – AL45
Оконно-дверная система с термоизолятором («теплая») – ALT65, ALT72
Оконная серия с термоизолятором («теплая») – ALT60
Оконные створки верхнеподвесного типа, встраиваемые в витраж – ALT83
Вентиляционные решетки – ALVG-24
Фасады – ALF50
Подъемно-сдвижные двери с термоизолятором («теплые») – ALR-72
Подъемно-сдвижные двери без термоизолятора («холодные») – ALR-45
Для нас в работе с АЛНЕО большим преимуществом является то, что производство и декорирование профиля находится в соседнем Краснодарском Крае. Это позволяет быстро получать материал и запускать заказ в производство.